О ПРОЕКТЕ

Заказчик по строительству объекта
Государственное предприятие 
«УКС Советского района г. Минска»

Генеральная проектная организация
ООО «Белтехнадзор»

Генеральная подрядная организация
ОАО «Стройтрест №4»

Объект строительства: Группа многоквартирных жилых домов с помещениями общественного назначения и подземная гараж-стоянка в границах ул. Л.Беды, Тиражной, Восточной, Белинского. 

3-я очередь строительства

 расположена в Советском районе г. Минска в границах улиц Л.Беды, Тиражной, Восточной, Белинского.


Цель строительства: возведение трёхсекционного многоквартирного жилого дома.

Сведения об этапах и сроках строительства

  • Начало строительства -
    1 квартал 2024 года.
  • Нормативная продолжительность строительства объекта - 12,5 месяцев.
  • Предполагаемый срок завершения строительства и ввода в эксплуатацию - 1 квартал 2025 года.

Объявления и информация

Временно отсутствует

Общая характеристика объекта строительства

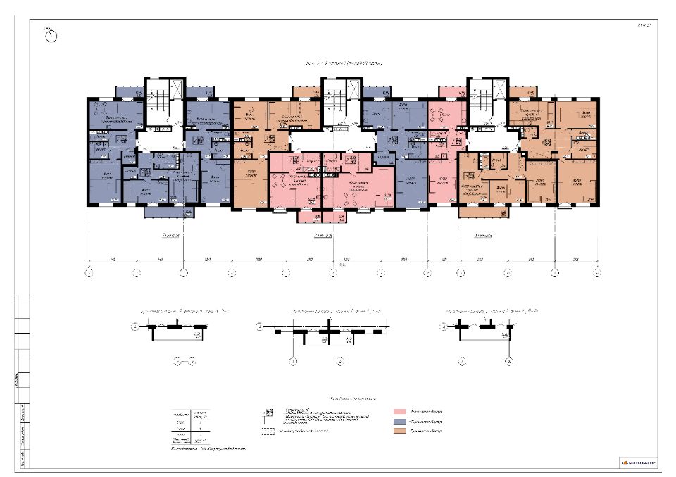
В объекте строительства предусмотрено строительство трёхсекционного жилого дома:

Дом 
  • 3 секции
  • 9 этажей
  • Общая площадь: 6 073,79 м²
  • 86 квартир
  • 25 - 1 комнатных квартир,
    37 - 2 комнатных квартир,            24 - 3 комнатные квартиры.

Характеристики дома

Конструкция жилых домов – монолитный каркас, с заполнением наружных стен из блоков ячеистого бетона толщиной 400 мм. на клею с последующим утеплением плитами минераловатными по методу легкой штукатурной системы, с теплым техническим чердаком (над верхним жилым этажом), плоской рулонной кровлей и организованным внутренним водостоком, подвалом (размещение электрощитовой, индивидуального теплового узла, водомерного узла).

Система отопления жилого дома – с поэтажной горизонтальной разводкой труб и поквартирным учетом тепла.

Система вентиляции в жилых домах естественная.

Каждая секция жилого дома оборудована лифтом грузоподъемностью 630 кг.

Внутренняя отделка

Чистовая отделка в квартирах не предусмотрена (стены, перегородки – штукатурка; покрытие полов – стяжка, сантехника – унитаз).

Планировки квартир предусмотрены с устройством межкомнатных перегородок из керамического кирпича и выполнением разводки электрики. В части квартир предусмотрены перегородки, отделяющие жилую комнату с кухонным оборудованием от прихожей.

Высота потолков – не менее 2,65 м.

Остекление – окна из ПВХ профиля. Все квартиры имеют остекленные лоджии.

В квартирах предусмотрены металлические входные двери.

В квартирах предусмотрены установка счетчиков учета горячего и холодного водоснабжения.


В состав общего имущества объекта входят водомерный узел, ИТП, электрощитовая, коридоры общего пользования, лестницы, лестничные клетки, лифты, кровля, другие места общего пользования, ограждающие несущие конструкции, механическое, электрическое, сантехническое и иное оборудование общедомового назначения, находящееся за пределами или внутри жилых помещений, иные объекты недвижимости, служащие целевому использованию здания, элементы озеленения и благоустройства дворовой и прилегающей к жилому дому территории.

Галерея

Планировки

Ход строительства объекта

Cookie-файлы
Настройка cookie-файлов
Детальная информация о целях обработки данных и поставщиках, которые мы используем на наших сайтах
Аналитические Cookie-файлы Отключить все
Технические Cookie-файлы
Другие Cookie-файлы
Мы используем файлы Cookie для улучшения работы, персонализации и повышения удобства пользования нашим сайтом. Продолжая посещать сайт, вы соглашаетесь на использование нами файлов Cookie. Подробнее о нашей политике в отношении Cookie.
Принять все Отказаться от всех Настроить
Cookies